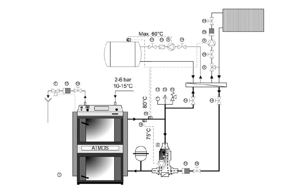
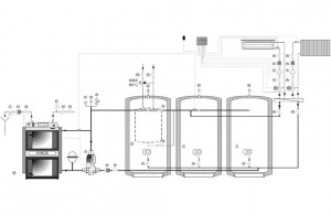
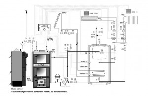
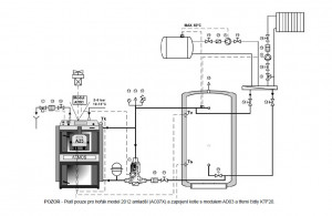
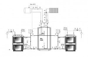
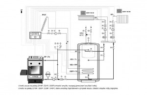
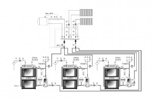
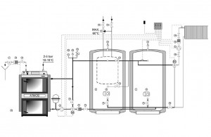
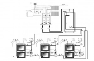
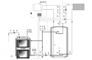
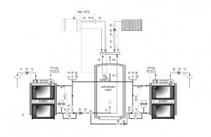
Zplynovací kotel na dřevo s ekvitermní regulací ACD01, termoregulační ventil, 2x akumulační nádrž 1 000 l, 2x řízený topný okruh, 2x el. spirála
POZOR - VŠECHNY KOTLE VYROBENÉ V ROCE 2003 A MLADŠÍ JSOU VYBAVENY CHLADÍCÍ SMYČKOU.
(Poznámka ke schématům: zpětná klapka je při chodu čerpadla zavřena přetlakem na výstupu z čerpadla, při vypnutém čerpadlu je plně otevřena. Pozor jedná se o klapku bez pružiny.)
Energeticky úsporná oběhová čerpadla
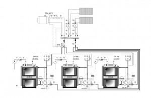
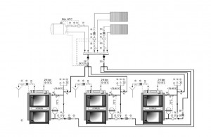
Dalších 55 doporučených zapojení s příslušenstvím
POZOR - čísla doporučených schémat se neshodují a nemají nic společného s čísly schémat pro zapojení regulace ACD01. Hydraulická schémata pro regulaci ACD 01 najdete pouze v návodu pro samotnou regulaci!
Kotel je nutné pravidelně čistit - přikládácí prostor a zadní sběrný kanál od popela a prachu
Tah komína musí dosahovat předepsaných hodnot (21 - 35 Pa podle typu kotle)
Pozor - Komín musí být dobře utěsněn a zaizolován, aby nedošlo při sníženém výkonu kotle ke kondenzaci vodní páry a dehtů v komíně.
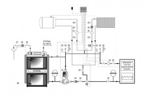
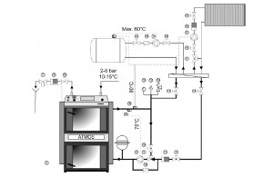
Zapojte kotel s akumulačními nádržemi. Je to nejlepší zapojení pro kotle na tuhá paliva, protože zvyšuje životnost kotle a snižuje spotřebu paliva. Nemůžete-li mít doporučený objem akumulačních nádrží, zapojte kotel alespoň s jednou vyrovnávací nádrží o objemu 500 l až 1000 l (viz návod k obsluze).
Instalace kotle s akumulačními nádržemi přináší tyto výhody:
Zapojení s akumulátory doporučujeme jako hlavní zapojení.
Nemůžete-li mít doporučený objem akumulačních nádrží, zapojte kotel alespoň s jednou vyrovnávací nádrží o objemu 500 - 1000 l. Instalace otopného systému musí být provedena odbornou firmou dle ČSN 060830. Pokud zvolíte velký objem akumulační nádrže, musíte také zvolit odpovídající výkon kotle, aby byl schopen tyto nádrže nabít za rozumnou dobu.
Po zatopení kotle nabijeme při provozu na maximální výkon (na 2 až 4 naložení) daný objem akumulačních nádrží na požadovanou teplotu vody 90 - 100 °C. Kotel poté necháme dohořet. Dále už jen odebíráme teplo ze zásobníku za pomoci trojcestného ventilu a to po dobu, která odpovídá velikosti akumulátoru a venkovní teplotě. V topném období (při dodržení minimálních objemů akumulátorů viz tabulka) to může činit 1 - 3 dny. Nelze-li použít akumulaci, doporučujeme alespoň jednu nádrž o objemu 500 - 1000 l pro vyrovnávání náběhů a doběhů kotle.
Akumulační nádrže jsou běžně dodávány bez izolace. Vhodným řešením je společné zaizolování daného počtu nádrží o požadovaném objemu minerální vlnou do skeletu ze sádrokartonu, případně dodatečné vyplnění sypkou izolací. Doporučená tloušťka izolace, při použití minerální vlny je 120 mm. Další variantou je zakoupení již zaizolovaných nádrží minerální vlnou v koženkovém pouzdru, které naše firma také dodává.
Pro ohřev teplé užitkové vody můžeme použít kombinovaný bojler, nebo akumulační nádrž s měděným průtokovým ohřívačem. (viz. ceník)
| TYP NÁDRŽE | OBJEM (l) | PRŮMĚR (mm) | VÝŠKA (mm) |
| AN 500 | 500 | 600 | 1970 |
| AN 600 | 600 | 750 | 1611 |
| AN 750 | 750 | 750/790* | 2010/1750* |
| AN 800 | 800 | 790* | 1910* |
| AN 1000 | 1000 | 850/790* | 2065/2210* |
* typ DH
Nádrže jsou dodávány bez izolací, nebo s izolací v koženkovém pouzdře
| MINIMÁLNÍ OBJEM AKUMULÁTORU | ||||||||
|---|---|---|---|---|---|---|---|---|
| Typ | DC18S | DC22S | DC25/25GS | DC32/32GS | DC40GS/SX | DC50S | DC70/75SE | DC100 |
| Výkon / kW | 20 | 22 | 25 | 35/32 | 40 | 49 | 70 | 99 |
| Objem / l | 1000 - 1500 | 1500 - 2000 | 1500 - 2000 | 2000 - 2500 | 2500 - 3000 | 3000 - 4000 | 4000 - 5000 | 5000 - 6000 |
Doporučujeme vždy zvolit větší objem akumulátoru z daného rozsahu
| MINIMÁLNÍ OBJEM AKUMULÁTORU | |||||
|---|---|---|---|---|---|
| Typ | C18S | C20S | C30S | C40S | C50S |
| Výkon / kW | 20 | 25 | 32 | 40 | 48 |
| Objem / l | 1 000 - 1 500 | 1 500 - 2 000 | 2 000 - 2 500 | 2 500 - 3 000 | 3 000 - 4 000 |
Akumulační vytápění je nejlepší zapojení pro kotle na tuhá paliva
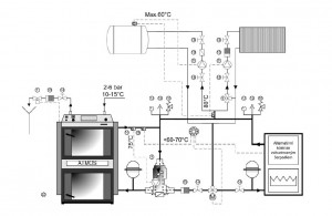
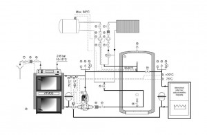
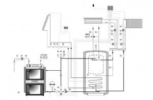
Zapojení kotle s akumulačmími nádržemi a Laddomatem 22

| Minimální průměry potrubí při zapojení s akumulačními nádržemi | ||||
|---|---|---|---|---|
| Typ a výkon kotle | část A | část B | ||
| v mědi | v oceli | v mědi | v oceli | |
| DC18S, C18S, DC20GS | 28 x 1 | 25 (1") | 28 x 1 | 25 (1") |
| DC22S, DC25S, DC25GS, C20S, DC22SX | 28 x 1 | 25 (1") | 28 x 1 | 25 (1") |
| DC32S, DC32GS, C30S, DC30SX | 35 x 1,5 | 32 (5/4") | 28 x 1 | 25 (1") |
| DC40GS, C40S, DC40SE, DC40SX | 35 x 1,5 | 32 (5/4") | 28 x 1 | 25 (1") |
| DC50S, DC50SE | 42 x 1,5 | 40 (6/4") | 35 x 1,5 | 32 (5/4") |
| DC70S, DC75SE, DC100 | 54 x 2 | 50 (2") | 42 x 1,5 | 40 (6/4") |
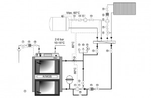
Laddomat 22 je určen pro kotle o výkonu od 15 do 100 kW
Kotle o vyšším výkonu s termoregulačním ventilem a silným čerpadlem, nebo trojcestným ventilem ovládaným servopohonem s elektrickou regulací udržující minimální teplotu vratné vody 65 - 75 °C. Při zapojení kotle s akumulačními nádržemi můžeme použít otevřenou nebo uzavřenou expanzní nádobu.
Návod k použití
Laddomat_22_CZ.pdf
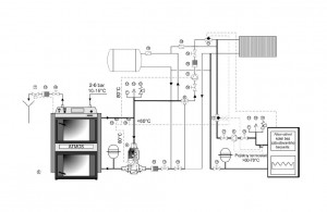
Zapojení chladící smyčky proti přetopení s pojistným ventilem Honeywell TS 130 - 3/4 A nebo WATTS STS20
(teplota otevření ventilu 95 - 97°C)
POZOR - chladící smyčka proti přetopení nesmí být využívána dle normy EN ČSN 303-5 k jiným účelům, než je ochrana proti přetopení (nikdy pro ohřev teplé užitkové vody).
Ventil TS 131 - ¾ A ,WATTS STS 20, DANFOSS BVTS – ¾ A jehož čidlo je umístěno v zadní části kotle chrání kotel proti přetopení tak, že stoupne-li teplota vody v kotli nad 95°C, vpustí do chladící smyčky vodu z vodovodního řádu, která převezme přebytečnou energii a odejde do odpadu. V případě umístění zpětné klapky na vstup vody do chladící smyčky, z důvodu zabránění možného zpětného proudění vody, díky poklesu tlaku ve vodovodním řádu , musíme chladící smyčku vybavit pojišťovacím ventilem 6 - 10 bar, nebo expansní nádobou o objemu minimálně 4 l.
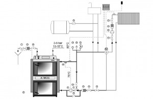
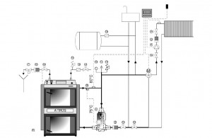
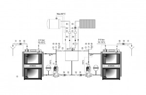
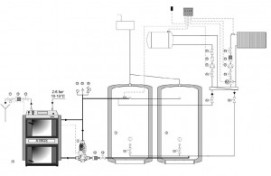
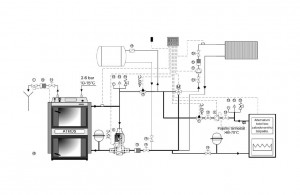
Chladící smyčka proti přetopeníZapojení kotle s Laddomatem 21/22 a třemi akumulačními nádržemi s ohřevem TUV, dvěma topnými okruhy, uzavřená exp. nádoba - jednoduchá reg. s jedním příložným termostatem

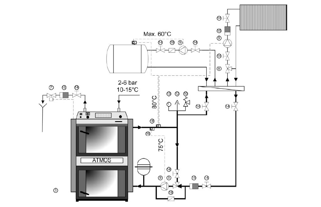
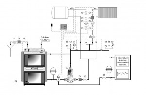
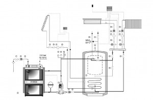
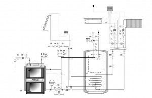
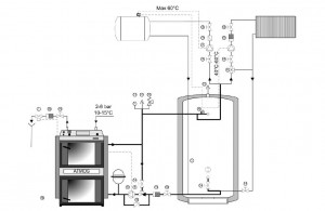
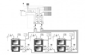
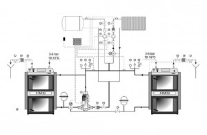
Zapojení kotle s Laddomatem 21/22, jedním topným okruhem s ohřevem TUV v komb. bojleru, uzavřená expanzní nádoba - jednoduchá regul. s třemi příložnými termostaty

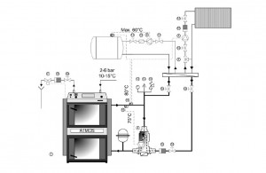
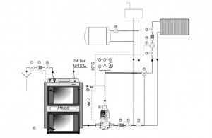
Zapojení kotle s termoregulačním ventilem, jedním topným okruhem s ohřevem TUV v komb. bojleru, uzavřená exp. nádoba - jednoduchá regul. s třemi termostaty

Od 1.1.2013 vstoupí v platnost v celé EU (v České a Slovenské republice) nové nařízení zakazující uvádět na trh samostatně stojící klasická oběhová čerpadla.
Technicky to znamená, že jakékoliv samostatně stojící čerpadlo prodávané a instalované do libovolného systému, musí být z kategorie úsporných.
Vyjímku mají do 1.8. 2015 pouze všechna zabudovaná čerpadla. Proto se tento nový předpis netýká Laddomatu 21 a nového izolovaného Laddomatu 22, který je určen pro výkony od 15 do 100 kW.
Je tedy zřejmé, že díky vyšší ceně úsporných čerpadel, bude Laddomat 21/22 ideálním cenovým řešením.
Laddomat 22 s úsporným čerpadlem bude uveden na trh do konce roku 2014.
Se zavedením úsporných čerpadel přichází i změny v jejich optimálním nastavení.
Jiné nastavení musí být pro kotlový okruh, jiné pro okruh vytápěného systému.
Pro kotlový okruh proto dodržujte předepsané nastavení viz. přiložený leták. V opačném případě může dojít k enormnímu dehtování kotle a ke zkrácení jeho životnosti (záruka zaniká).
Standardní čerpadla

Úsporná čerpadla

Doporučená schemata zapojení s využitím Laddomatu 21,22, termoregulačních ventilů, trojcestných ventilů, řízených elektronickou regulací pro požadovanou teplotu vratné vody, elektronické regulace topných systémů a ohřev teplé užitkové vody, pro výkony kotlů do 100 kW.
POZOR - čísla doporučených schémat se neshodují a nemají nic společného s čísly schémat pro zapojení regulace ACD01. Hydraulická schémata pro regulaci ACD 01 najdete pouze v návodu pro samotnou regulaci!
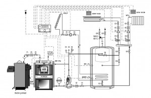
| 1 | Akumulační nádrž | 10 | Pojistný ventil přetlakový | 19 | Zpětná klapka – s pružinou - univerzální |
|---|---|---|---|---|---|
| 2 | Akumulační nádrž s vestavěným příslušenstvím | 11 | Membránový pojišťovací ventil pro TUV | 20 | Záložní zdroj el. energie s rozvaděčem |
| 3 | Elekltrické topné těleso s termostatem | 12 | Automatický odvzdušňovací ventil | 21 | Záložní zdroj el. energie |
| 4 | Laddomat 21 | 13 | Tlakoměr | 22 | Teploměr spalin |
| 5 | Termoregulační ventil | 14 | Kulový kohout | 23 | Kouřovod 152 mm – s čistícím víkem |
| 6 | Termosatický ventil směšovací pro ohřev TUV | 15 | Filtr | 24 | Kouřovod 152 mm - smaltovaný |
| 7 | Termostatický ventil pro chladící smyčku | 16 | Příložný termostat na čerpadlo | 25 | Teploměr |
| 8 | Trojcestný ventil | 17 | Zónový ventil | ||
| 9 | Čerpadlo | 18 | Zpětná klapka bez pružiny |
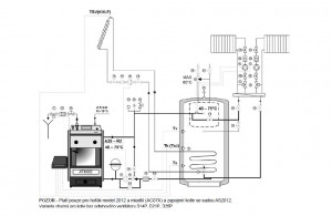
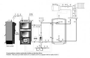
1. Modul AD02 slouží standatně k ovládní odtahového ventilátoru kotle
2. Modul AD03 slouží standatně k ovládní odtahového ventilátoru kotle a zároveň čerpadla v kotlovém okruhu nebo solárního čerpadla. Platí pouze pro model hořáku 2012 a mladší (AC07X).
3. Sada SC2012 je sadou čtyř samostatných čidel, která se skládá ze tří čidel vody KTF20 s 6 m kabelem, jedním čidlem spalin (soláru) s 5 m kabelem a jímkou pro solár. Platí pouze pro model hořáku 2012 a mladší (AC07X).
4. Sada AS25 slouží k ovládání hořáku A25 (A45) a kotle vybaveného odtahovým ventilátorem podle dvou teplot (čidel) na vyrovnávací nádrži o objemu 500 až 1000 l. Skládá se ze dvou čidel KTF20 s 5 m kabelem, modulu AD02 pro ovládání odtahového ventilátoru a speciální propojky.
5. Sada AS2012 slouží k ovládání hořáku A25 (A45), kotle vybaveného odtahovým ventilátorem, čerpadla v kotlovém okruhu nebo čerpadla solárního ohřevu podle tří teplot (čidel) na vyrovnávací nádrži se solárním výměníkem a ve spolupráci s čidlem na solárním panelu. Sada čtyř čidel se zapojeným konektorem se skládá ze tří čidel vody KTF20 s 6 m kabelem, jedním čidlem spalin (soláru) do 400 °C s 5 m kabelem, jímkou pro solár, čtyřmi dutinkami s cínem ke snadnému spojení vodičů, modulem AD03 pro ovládání odtahového ventilátoru kotle a čerpadla v kotlovém okruhu (soláru) z hořáku A25 a jednou propojkou pro kotle DCxxSP. Tato sada je určena pro kotle DCxxSP s funkcí automatického startu hořáku na pelety po dohoření dřeva, nebo pro kotle DxxP s funkcí řízení hořáku podle tří teplot na vyrovnávací nádrži s výměníkem pro solár. Platí pouze pro model hořáku 2012 a mladší (AC07X).
6. Chceme-li, aby hořák A25 (A45) pracoval podle dvou teplo na vyrovnávací nádrži musím do nádrže umístit čidla Tv (vrchní) a Ts (spodní).
7. Chceme-li, aby hořák A25 (A45) pracoval podle tří teplot na vyronávací nádrži s výměníkem pro spolár, musíme do nádrže umístit čidla Tv (vrchní), Tk (Ts2 - prostřední) a Ts (spodní). Dále musíme umístit na solární panel čidlo Tsv. Ohřívání vyrovnávací nádrže energií ze solárního panelu je řízeno na základě porovnávání teplot Tsv a Ts. Nabíjení vyrovnávací nádrže hořákem na pelety je řízeno podle čidla Tv a Ts nebo Tk (Ts2 - speciální funkce hořáku). Platí pouze pro model hořáku 2012 a mladší (AC07X).
8. V případě, že chceme ovládat čerpadlo v kotlovém okruhu z hořáku A25 (A45), musí být do kotle umístěno čidlo teploty kotle Tk (nelze ale využít funkce řízení podle tří teplot na vyrovnávací nádrži). Platí pouze pro model hořáku 2012 a mladší (AC07X).
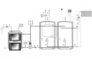
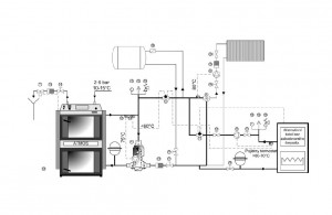
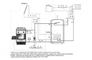
Zapojení kotle s Laddomatem 21/22, jedním topným okruhem, s ohřevem TUV v komb. bojleru, vyrovnávací nádrží, uzavřená exp. nádoba - jednoduchá reg. s dvěma termostaty
Vážení zákazníci,
dle zákona o ochraně ovzduší č. 201/2012 Sb. musí být do konce roku 2016 každý teplovodní kotel na tuhá paliva připojený na topnou soustavu od 10 – 300 kW příkonu zkontrolován odborně způsobilou osobou proškolenou výrobcem.
Tato kontrola vyplývá ze zákona a je povinná.
Doporučená cena kontroly je 1000,- s DPH + náklady na ujeté kilometry (12,-Kč/km). Cena neobsahuje náklady za vyčištění a výměnu vadných dílů.
Při kontrole dojde k posouzení stavu kotle, stavu komína, kouřovodu, zapojení kotle a topného systému. Proto před samotnou kontrolou vše řádně vyčistěte. Zjistíte-li při čištění, že je třeba některé díly vyměnit, nahlaste prosím jejich seznam technikovi, aby vám je mohl přivézt a zároveň vyměnit.
Proto, aby kontrola kotle podle zákona o ochraně ovzduší skončila s kladným hodnocením (dopadla dobře), musí být kotel a celý systém v pořádku z pohledu bezpečnosti provozu a plné funkčnosti. Musí být v pořádku, keramické tvarovky, rošty, regulační prvky atd..
Servisní technik musí přijet ke kotli, který je zatopený, aby mohl překontrolovat jeho funkčnost.
Nezapomeňte proto, že je třeba mít připravené dostatečné množství předepsaného paliva, které je uvedeno na výrobním štítku kotle a v návodu k obsluze. Při kontrole předložte vždy návod k obsluze ke kotli.
TRICER-TOP s.r.o.
Útušice 42
332 09 Štěnovice
Tel.: 377 916 561, 724 084 767
e-mail: Tato e-mailová adresa je chráněna před spamboty. Pro její zobrazení musíte mít povolen Javascript., Tato e-mailová adresa je chráněna před spamboty. Pro její zobrazení musíte mít povolen Javascript.
V první vlně bylo vyřízení Kotlíkové dotace velice jednoduché, druhá vlna (výzva) nabízí ještě snazší postup a je tak dosažitelná pro každého. Pojďme si říci jak na to, co vše program nabízí a co vyžaduje.
Cílem Programu je snížení znečištění ovzduší z malých spalovacích zdrojů, tzv. lokálních topenišť využívajících pevná paliva (tuhá paliva). Dotační program nabízí možnost získání dotace na moderní kotle na pevná paliva, plynové kondenzační kotle a teplená čerpadla. Pojďme se však zaměřit právě na kotle na pevná paliva (tuhá paliva).
Předmětem dotace je výměna stávajících nevyhovujících kotlů na pevná paliva za nové účinné nízkoemisní tepelné zdroje. Výměna starých kotlů za nové a ekologičtější je přínosem pro nás všechny, protože právě nevyhovující kotle na pevná paliva se zásadním způsobem podílejí na znečištěném ovzduší v ČR. Třetí výzva dotací nabízí 3,75 miliardy korun, které půjdou rovnou na výměnu zdrojů. Díky tomu se může ve třetí a poslední vlně vyměnit dalších 36 tisíc kotlů. Nejzazší datum pro ukončení fyzické realizace operace je 31. 12. 2023.
Ve třetí výzvě nebudou programem podporovány kotle na uhlí, ale pouze kotle na biomasu (dřevo a pelety). Lidé nebudou muset provádět mikroenergetická opatření, díky čemuž se jim nejen finančně ale i administrativně usnadní celý proces výměny kotle a získání Kotlíkové dotace.
Pro získání dotace musíte dodat potřebné dokumenty. Především žádost o poskytnutí dotace dle příslušného vzoru, což zvládne snad každý sám. Doklad o kontrole technického stavu a provozu stávajícího spalovacího stacionárního zdroje na pevná paliva k potvrzení relevantní emisní třídy stávajícího zdroje nebo lze dokument nahradit jiným dokladem, například fotografií štítku kotle nebo návodem k obsluze. V případě kotlů, u kterých třída nebyla stanovena lze nahradit čestným prohlášením o tom, že je třída kotle neznámá. Dále je nutná fotodokumentace stávajícího kotle napojeného na otopnou soustavu a komínové těleso. Dalšími doklady jsou písemné souhlasy spoluvlastníků, písemný souhlas druhého z manželů a písemný souhlas vlastníka pozemku. Na vše jsou připraveny formuláře, které postačí správně vyplnit.
Podpora na výměnu zdroje tepla je ale poskytnuta pouze v případě, kdy je stávající rodinný dům vytápěn starým kotlem na pevná paliva nesplňujícím třídu 3, 4 nebo 5 dle ČSN EN 303-5. V případě kotlů s ručním přikládáním a kombinovaných kotlů je vyžadováno současné užití akumulační nádoby o minimálním objemu 55 l/kW instalovaného výkonu kotle (včetně případného zásobníku TUV, pokud je tímto kotlem ohříván).
V případě realizace kotlů na pevná paliva jsou podporovány pouze kotle splňující požadavky nařízení komise č. 2015/1189 ze dne 28. dubna 2015, kterým se provádí směrnice Evropského parlamentu a Rady 2009/125/ES, tedy kotle splňující požadavky na EKODESIGN. Každý podporovaný kotel má přidělené takzvané SVT číslo, které značí to, že je zařazen do dotačního programu a splňuje příslušná kritéria. Výčet podporovaných zařízení je uveden v seznamu výrobků a technologií, který je k tomuto účelu veden Státním fondem životního prostředí ČR (SFŽP ČR) na svt.sfzp.cz.
Dotace se netýkají pouze nákupu nového kotle!
| Typ nového zdroje | Kategorie | Max. % podpory (způsobilé náklady) | Podpora (max. limit dotace v Kč) |
|---|---|---|---|
| Kotle na biomasu se samočinnou dodávkou paliva (peletové kotle) | A3 | 80 % (ze 150 000) | 120 000 (* 127 500) |
| Tepelná čerpadla (všechny typy) | 80 % (ze 150 000) | 120 000 (* 127 500) | |
| Kotle na biomasu s ruční dodávkou paliva | A3 | 80 % (ze 125 000) | 100 000 (* 107 500) |
| Plynové kondenzační kotle | 75 % | 95 000 (* 102 500) |
*domácnosti v prioritních oblastech automaticky získají bonus ve výši 7 500 korun
Mezi způsobilé výdaje (náklady) bude možné zahrnout nejen náklady na pořízení zdroje, jeho instalaci, nebo vybudování palivového skladu, ale také náklady na novou otopnou soustavu či její rekonstrukci včetně regulace a měření a úpravy spalinových cest (např. vložkování komína). Do uznatelných nákladů je také zahrnuta projektová dokumentace související s předmětem dotace.
Pro systémy zplynovacích kotlů na dřevo s ruční dodávkou paliva jsou povinné výše zmíněné akumulační nádrže, důležité je však také myslet na to, aby byl celý topný systém kvalitně regulován například ekvitemní regulací, která hospodárně nakládá s naakumulovanou energií a zvyšuje komfort provozu.
Nové podmínky a podklady pro kotlíkové dotace - 3. výzva (vlna) - dotace na kotel ATMOS
Pro kontakt na doporučeného topenáře ve vašem okolí klikněte ZDE, případně volejte: +420 326 701 404
nebo pište na e-mail:Tato e-mailová adresa je chráněna před spamboty. Pro její zobrazení musíte mít povolen Javascript.
Podmínky a podklady pro kotlíkové dotace - 2. výzva (vlna) - dotace na kotel ATMOS
Pro kontakt na doporučeného topenáře ve vašem okolí klikněte ZDE, případně volejte: +420 326 701 404
nebo pište na e-mail: Tato e-mailová adresa je chráněna před spamboty. Pro její zobrazení musíte mít povolen Javascript.
Podmínky a podklady pro kotlíkové dotace - dotace na kotel ATMOS
Kotlíkové dotace - výzva Středočeského kraje
Středočeský kraj - kotlíkové dotace
Kotlíkové dotace - výzva Pardubického kraje
Pardubický kraj - kotlíkové dotace
Kotlíkové dotace - výzva Moravskoslezského kraje
Moravskoslezský kraj - kotlíkové dotace
Kotlíkové dotace - výzva kraje Vysočina
Kraj Vysočina - kotlíkové dotace
Kotlíkové dotace - výzva Jihočeského kraje
Jihočeský kraj - kotlíkové dotace
Kotlíkové dotace - výzva Plzeňského kraje
Plzeňský kraj - kotlíkové dotace
Kotlíkové dotace - výzva Ústeckého kraje
Ústecký kraj - kotlíkové dotace
Kotlíkové dotace - výzva Karlovarského kraje
Karlovarský kraj - kotlíkové dotace
Kotlíkové dotace - výzva Královéhradeckého kraje
Královéhradecký kraj - kotlíkové dotace
Kotlíkové dotace - výzva Jihomoravského kraje
Jihomoravský kraj - kotlíkové dotace
Kotlíkové dotace - výzva Olomouckého kraje
Olomoucký kraj - kotlíkové dotace
Kotlíkové dotace - výzva Zlínského kraje
Zlínský kraj - kotlíkové dotace
Kotlíkové dotace - výzva Libereckého kraje
Liberecký kraj - kotlíkové dotace
Operační program životního prostředí (Kotlíkové dotace) - 16. výzva - Zlepšování kvality ovzduší v lidských sídlech
http://www.opzp.cz/vyzvy/16-vyzva
Operační program životního prostředí - potřebné DOKUMENTY
http://www.opzp.cz/vyzvy/16-vyzva/dokumenty
Pro kontakt na doporučeného topenáře ve vašem okolí klikněte ZDE, případně volejte: +420 326 701 404
nebo pište na e-mail: Tato e-mailová adresa je chráněna před spamboty. Pro její zobrazení musíte mít povolen Javascript.
Nové podmínky a podklady pro zelenou úsporám

http://www.novazelenausporam.cz/
Kvalifikovaní topenáři pro dotace (vyhledávání dle PSČ nebo adresy do vybrané vzdálenosti)
http://www.topenaridotace.cz/
Doporučujeme spalovat kvalitní suché štípané polenové dřevo o průměru 80 - 150 mm, délkách 250 – 1030 mm (dle typu kotle) o vlhkosti 12 % až 20 % a výhřevnosti 15 – 17 MJ.kg-1.
Maximální výkon a dlouhou životnost kotle zajistíte, budete-li spalovat dřevo minimálně 2 roky odleželé. V následujícím grafu uvádíme závislost obsahu vody na výhřevnosti paliva. Užitečný energetický objem ve dřevě klesá velmi výrazně s obsahem vody.
Například:
Dřevo s 12 - 20 % vody má tepelnou hodnotu 4 kWh / 1kg dřeva
Dřevo s 50 % vody má tepelnou hodnotu 2 kWh / 1kg dřeva
Čerstvé dřevo hřeje málo, špatně hoří, silně kouří a podstatně zkracuje životnost kotle a komínu. Výkon kotle poklesne až na 50 % a spotřeba paliva stoupne na dvojnásobek.
Předepsaným palivem pro naše kotle je Kvalitní hnědé uhlí OŘECH 1 o výhřevnosti 17 - 20 MJ.kg-1.
Náhradním palivem je kostka nebo brikety. Doporučujeme spalovat uhlí méně spékavé a s nízkým obsahem síry. Palivo o menší zrnitosti lze přidávat jen na žhavou vrstvu a v malém množství.
Předepsaným palivem pro naše kotle je uhlí OŘECH 1 o výhřevnosti 17 - 30 MJ.kg-1.
Náhradním palivem je kostka nebo brikety. Doporučujeme spalovat uhlí méně spékavé a s nízkým obsahem síry. Palivo o menší zrnitosti lze přidávat jen na žhavou vrstvu a v malém množství.
Předepsaným palivem pro naše kotle jsou hnědouhelné brikety o výhřevnosti 19 - 23 MJ.kg-1.
Kvalitní dřevěné brikety o průměru 80 - 130 mm, délce 200 - 380 mm a výhřevnosti 16 - 19 MJ.kg-1.
Ekologické dřevěné brikety se vyrábějí z dřevního odpadu vysokotlakým lisováním bez jakýchkoliv chemických pojidel. V České republice je vyrábí a prodává řada firem. Kvalita dřevěných briket je však různá. Kvalitní dřevěné brikety poznáme podle toho, že se při spalování v přikládacím prostoru nerozpadávají na piliny. Dřevěné brikety které se rozpadávají na piliny je možné spalovat jen v kombinaci s kusovým dřevem nebo hnědým uhlím, nikdy ne však samostatně. Ucpávají zplynovací trysku nebo zplynovací rošt.
Kvalitní dřevěné pelety o průměru 6 - 8 mm, délce 5 až 25 mm a výhřevnosti 16 - 19 MJ.kg-1 (bílé pelety).
Pelety jsou novým palivem vyráběným obdobným způsobem jako dřevěné brikety z odpadního dřeva, lisováním. Za kvalitní pelety považujeme pelety bílé vyráběné z měkkého dřeva bez kůry. Pro kotle Atmos se používají pelety o průměru 6 až 8 mm.
Jiné pelety z řepkové nebo obilné slámy jsou momentálně jen okrajovou a velmi problematickou záležitostí, proto se jejich spalováním naše firma nezabývá.
Vyrobci_prodejci_pelet a briket.pdf
| Palivo | Průměrná výhřevnost paliva |
Průměrná cena paliva 1.1.2019 |
Průměrná účinnost a druh použitého kotle |
Roční spotřeba paliva při spotřebě 120 GJ a objemu vytápěného prostoru 370 m3 |
Celkové náklady na topnou sezónu v Kč |
|---|---|---|---|---|---|
| Kusové dřevo | 14,8 MJ/kg | 200 - 1.000,- Kč/ prostorový metr |
Zplynovací kotel ATMOS s účinností 88 % |
9,2 t 20 prostorových metrů |
4.000 - 20.000,- |
| Klasický kotel s účinností 65 % |
12,5 t 28 prostorových metrů |
5.600 - 28.000,- | |||
| Hnědé uhlí | 18 MJ/kg | 2.900 - 3.900 Kč/t | Zplynovací kotel ATMOS s účinností 88 % |
7,7 t | 22.330 - 30.030,- |
| Klasický kotel určený pro jiné palivo 65 % |
10,3 t | 29.870 - 40.170,- | |||
| Černé uhlí | 29,5 MJ/kg | 5.000 - 6.000 Kč/t | Zplynovací kotel ATMOS s účinností 88 % |
4,7 t | 23.500 - 28.200,- |
| Klasický kotel s účinností 65 % |
6,3 t | 31.500 - 37.800,- | |||
| Uhelné brikety (hnědouhelné) |
19,8 MJ/kg | 5.000 - 7.500 Kč/t | Zplynovací kotel ATMOS s účinností 88 % |
7,0 t | 35.000 - 52.500,- |
| Klasický kotel s účinností 65 % |
9,4 t | 47.000 - 70.500,- | |||
| Dřevěné Pelety (kvalitní bílé) |
18 MJ/kg | 4.500 - 7.000 Kč/t | Speciální kotel ATMOS s účinností 91% |
7,4 t | 33.300 - 51.800,- |
| Dřevěné brikety | 18 MJ/kg | 4.000 - 6.500 Kč/t | Zplynovací kotel ATMOS s účinností 88 % |
7,7 t | 30.800 - 50.050,- |
| Klasický kotel s účinností 65 % | 10,3 t | 41.200 - 66.950,- | |||
| Zemní plyn | 33,7 MJ/m3 | 1.255 Kč/MWh 13,30 Kč/m3 |
Kondenzační kotel s účinností 105 % |
3.390 m3 | 45.087,- + poplatky 4.500 |
| Klasický kotel s účinností 90 % | 3.960 m3 | 52.668,- + poplatky 4.500 |
|||
| Elektřina (akumulační) |
3,6 MJ/kWh | 2,22 Kč/kWh | 98 % | 34.010 kWh | 75.502,- + poplatky 5.400,- |
| Elektřina (přímotopná) |
3,6 MJ/kWh | 2,60 Kč/kWh | 99 % | 33.670 kWh | 87.542,- + poplatky 7.700,- |
| Extra LTO | 42 MJ/kg | 19 až 29 Kč/kg | 90 % | 3.180 kg | 60.420 - 92.220,- |
| Propan Butan | 46 MJ/kg | 25 až 35 Kč/kg | 90 % | 2.900 kg | 72.500 - 101.500,- |
| Elektřina (přímotopná, akumulační) | Měsíční platba podle zvolené velikosti jističe (453,- až 641,- Kč) |
| Zemní plyn | Měsíční platba podle zvolené velikosti odběru (259,- až 408,- Kč) |
| Propan Butan | Pravidelné revize tlakové nádoby |
| Hnědé uhlí | Poplatek za odvoz popela |
Skutečné náklady na vytápění jsou v praxi u zplynovacích kotlů, oproti klasickým kotlům, ještě nižší o 10 až 15% než jak je uvedeno v tabulce. To je způsobeno jejich schopností dobře regulovat výkon při zhruba stejné účinnosti, což u klasických kotlů dobře nejde.