header img

Speciální zplynovací kotle na dřevo

Zplynovací kotel na dřevo Zplynovací kotel na dřevo
- typ DCxxS(X)

Ekologické zplynovací kotle na kusové dřevo

Jsou konstruovány pro spalování dřeva, na principu generátorového zplynování s použitím odtahového ventilátoru (S), který odsává spaliny z kotle, nebo s použitím tlačného ventilátoru, který vhání spalovací vzduch do kotle.

Těleso kotlů je vyrobeno jako svařenec z kvalitních ocelových plechů o tloušťce 3 až 8 mm. Tvoří je násypka paliva (6 mm) , která je ve spodní části opatřena zplynovací tryskou s podélným otvorem pro průchod spalin a plynů. Dohořívací prostor pod ní je opatřen keramickými tvarovkami pro ideální vyhoření všech spalitelných látek s vysokou účinností při ekologicky šetrném spalování. V zadní části tělesa kotlů je svislý spalinový kanál, opatřený ve vrchní části zatápěcí záklopkou. Vrchní část spalinového kanálu je opatřena odtahovým hrdlem pro připojení na komín.

Kotle na dřevo ATMOS Generátor DC15GS, DC20GS, DC25GS, DC32GS a DC40GS s velkým přikládacím prostorem vyloženým keramikou pro optimální kvalitu spalování. Je to skutečný generátor na dřevoplyn.


Výhody zplynovacích kotlů na kusové dřevo ATMOS

Zplynovací kotel na dřevo Zplynovací kotel na dřevo
- typ DCxxGS
  • Možnost spalovat velké kusy dřeva (kusové dřevo)
  • Velký zásobník paliva - dlouhá doba hoření
  • Vysoká účinnost 85 až 90 % podle typu - primární i sekundární vzduch je předehříván na vysokou teplotu
  • Ekologické spalování - kotel dle ČSN EN 303-5 třídy 4 a 5, EKODESIGN 2015/1189
  • Odtahový ventilátor - bezprašné vybírání popela, kotelna bez kouře
  • Chladící smyčka proti přetopení – bez rizika poškození kotle
  • Automatické vypnutí kotle po dohoření paliva – spalinový termostat
  • Pohodlné vybírání popela – velký keramický spalovací prostor pro popel (u dřeva vybíráme jednou za týden)
  • Kotel bez trubkovnice - snazší čištění
  • Malé rozměry a nízká hmotnost
  • Vysoká kvalita

Životní prostředí

Obrácené spalování, předehřátý spalovací vzduch a keramický spalovací prostor umožňují prakticky dokonalé spalování s minimem škodlivých exhalací. Kotle proto splňují limity pro udělení známky Ekologicky šetrný výrobek směrnice MŽP ČR. Kotle jsou dle ČSN EN 303-5 zařazeny do třídy 4 a  5 (Ekodesign) a proto je na ně poskytována dotace ze Státního Fondu životního prostředí (Kotlíkové dotace).

Osvědčení a certifikace

Všechny kotle ATMOS jsou certifikovány ve zkušebnách pro jednotlivé země určení: SZÚ Brno, TÜV München - Německo, Rusko, Bělorusko, Litva, Lotyšsko, Ukrajina, Švédsko, Polsko a Rakousko, Slovensko, Maďarsko, dle platných norem - ČSN EN 303-5.
Chráněno průmyslovým patentem.

ecolabellingecodesign

 Vybrané kotle DCxxS a všechny kotle DCxxGS splňují všechny podmínky pro získání Kotlíkové dotace. (Více v ceníku pro kotle a nebo letáku pro Kotlíkové dotace)

 
DC22S, DC25S, DC30SX, DC32S, DC40SX, DC50S ATMOS Dřevoplyn - kotel na dřevo DC22S, DC25S, DC30SX,
DC32S, DC40SX, DC50S
ATMOS Dřevoplyn
- kotel na dřevo
DC18S ATMOS Dřevoplyn - kotel na dřevo DC18S
ATMOS Dřevoplyn
- kotel na dřevo
DC15GS, DC20GS, DC25GS, DC32GS, DC40GS, DC50GSX, DC70GSX ATMOS Generátor - kotel na dřevo DC15GS, DC20GS, DC25GS,
DC32GS, DC40GS,
DC50GSX, DC70GSX
ATMOS Generátor
- kotel na dřevo
Pohled do horní přikládací komory - Dřevoplyn Pohled do horní přikládací komory - Dřevoplyn
Pohled do horní přikládací komory - Generátor Pohled do horní přikládací komory - Generátor
Pohled do spodní spalovací komory - Střecha Pohled do spodní spalovací komory
- Střecha
Pohled do spodní spalovací komory - Kulový prostor Pohled do spodní spalovací komory
- Kulový prostor
Plamen ve spodní spalovací komoře Plamen ve spodní spalovací komoře
DCxxS - Dřevoplyn - střecha
Plamen ve spodní spalovací komoře Plamen ve spodní spalovací komoře
DCxxGS - Generátor - kulový prostor
Velikost přikládacího otvoru Velikost přikládacího otvoru
Odtahový ventilátor  a kouřové hrdlo Odtahový ventilátor a kouřové hrdlo

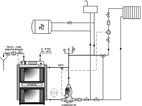
Instalace

Zplynovací kotle na dřevo ATMOS musí být zapojeny s LADDOMATEM 22 nebo termoregulačním ventilem  (trojcestným ventilem ovládaným servopohonem v případě použití elektronické regulace ACD 01/03/04) pro docílení minimální teploty vratné vody do kotle 65 °C. Výstupní teplota kotle musí být trvale udržována v rozsahu 80 - 90 °C.
Všechny kotle jsou dodávány v základním provedení s chladící smyčkou proti přetopení. Doporučujeme instalovat kotle s akumulačními nádržemi, které nám sníží spotřebu paliva a zvýší komfort vytápění.

Laddomat 22  a termoregulační ventil Laddomat 22 a termoregulační ventil
Chladící smyčka kotle Chladící smyčka kotle

Zapojení kotle  s Laddomatem 22 bez akumulačních nádrží

Zapojení kotle s Laddomatem 22 bez akumulačních nádrží

Zapojení kotle  s regulací ACD 01

Zapojení kotle s regulací ACD 01 a akumulačními nádržemi


Regulace kotlů

Elektromechanická - regulaci výkonu provádíme vzduchovou regulační klapkou ovládanou regulátorem tahu, typ FR 124, který automaticky podle nastavené výstupní teploty vody (80 - 90 °C) otevírá či přivírá vzduchovou klapku. Nastavení regulátoru výkonu je nutno věnovat zvýšenou pozornost, poněvadž regulátor kromě regulace výkonu plní další důležitou funkci, že zajišťuje kotel proti přetopení. Kotel je dále vybaven regulačním termostatem umístěným na panelu kotle, který ovládá odtahový ventilátor dle nastavené výstupní teploty (80 - 85 °C). Na regulačním termostatu by měla být nastavena teplota o 5 °C nižší než na regulátoru tahu FR 124.
Kotle jsou navíc vybaveny spalinovým termostatem, který slouží k vypnutí odtahového ventilátoru po dohoření paliva.

Kotle pracují na snížený výkon do 70 % jmenovitého výkonu i bez ventilátoru (nedoporučujeme stálý provoz s vypnutým odtahovým ventilátorem).

Vzduchová regulační klapka Vzduchová regulační klapka
Regulátor tahu typ FR 124 Regulátor tahu typ FR 124
Ovládací panel kotle se standardní regulacíOvládací panel kotle se standardní regulací

Složení panelu:
Hlavní vypínač, bezpečnostní termostat, teploměr, regulační termostat a spalinový termostat

Elektromechanická regulace je optimálním řešením řízení provozu kotle (ventilátoru) jednoduchým způsobem.
Provedení panelu se standartní regulací je základním provedením pro všechny vyráběné kotle

Každý kotel je možné vybavit u zákazníka elektronickou regulací ATMOS ACD 01 pro řízení celého topného systému v závislosti na venkovní teplotě, pokojové teplotě a čase. Tato regulace je schopna řídit i samotný kotel s ventilátorem s mnoha dalšími funkcemi.

Kotle DC25S, DC32S a DC25GS lze objednat již z výroby s regulací ATMOS ACD 01, se speciálním panelem.
Kotle jsou z výroby vybaveny všemi potřebnými čidly. Sada čidel ACD 01 pro řízení otopného systému a navíc čidlo teploty spalin pro ovládání provozu kotle.

Ovládací panel kotle se ekvitermní regulací ATMOS ACD 01

Ovládací panel kotle se ekvitermní regulací ATMOS ACD 01

Složení panelu:

Hlavní vypínač, bezpečnostní termostat, pojistka 6,3 A a elektronická regulace ACD 01

Ekvitermní regulace je vybavena funkcemi pro řízení provozu kotle (ventilátoru), čerpadla v kotlovém okruhu, dvou topných okruhů, ohřevu TUV a řízení solárního ohřevu.
Provedení panelu se zabudovanou elektronickou regulací ACD 01 je vyráběno jako varianta u kotlů DC25S, DC32S, DC25GS.


Technické informace

Legenda  k nákresu kotlů na dřevo

Legenda k nákresu kotlů na dřevo

1. Těleso kotle 24. Regulační termostat ventilátoru (kotlový)
2. Dvířka plnící 25. Výplň dvířek - Sibral
3. Dvířka popelníková 26. Těsnění dvířek - šňůra 18x18
4. Ventilátor odtahový (S) 29. Kondenzátor odtahového ventilátoru
5. Žáruvzdorná tvarovka - tryska 33. Brzdič do kouřového kanálu (DC22SX, DC30SX, DC40SX, DC32GS, DC40GS, DC50S, DC70S, DC40SE, DC50SE, DC75SE)
6. Ovládací panel 35. Spalinový termostat
7. Bezpečnostní termostat 36. Bezpečnostní termostat
(Pozor - při přetopení nutno zamáčknout)
8. Regulační záklopka 37. Brzdič - pod střechou (jen u DC30SX, DC40SX, DC50S, DC75SE)
9. Žáruvzdorná tvarovka - u typu GS - bok topeniště 39. Brzdič spalin podél kulového prostoru (DC18S)
10. Žáruvzdorná tvarovka - u typu GS - kulový prostor L+P - (keramická střecha (DCxxS)) 42. Regulace primárního vzduchu
11. Těsnění - trysky 43. Regulace sekundárního vzduchu
12. Žáruvzdorná tvarovka - půlměsíc    
13. Zatápěcí záklopka    
14. Žáruvzdorná tvarovka - u typu GS - zadní čelo kul. prostoru    
15. Víko čistící    
17. Táhlo zatápěcí záklopky    
18. Teploměr K - hrdlo kouřovodu
19. Clona rámečku L - výstup vody z kotle
20. Vypínač s kontrolkou M - vstup vody do kotle
22. Regulátor tahu - Honeywell FR 124 N - nátrubek pro napouštěcí kohout
23. Chladící smyčka proti přetopení P - nátrubek pro čidlo ventilu ovládajícího chladící smyčku (TS 131, STS 20)
 DC18SDC22SDC25SDC30SXDC32SDC40SXDC50SDC70SDC15GSDC20GSDC25GSDC32GSDC40GSDC50GSXDC70GSXDC100DC105SDC150S
A 1185 1185 1185 1185 1260 1260 1260 1399 1280 1280 1280 1280 1434 1563 1686 1690 1813 1813
B 758 959 959 959 959 959 1160 1160 670 758 959 959 959 1042 1268 1170 1095 1295
C 675* 675* 675* 675* 678 678 678 678 678 678 678 678 678 678 678 970 1010 1010
D 874 874 874 874 950 950 950 1047 950 950 950 950 1099 997 1086 1290 1459 1459
E 150 (152) 150 (152) 150 (152) 150 (152) 150 (152) 150 (152) 150 (152) 180 150 (152) 150 (152) 150 (152) 150 (152) 150 (152) 150 (152) 180 200 200 200
F 65 65 65 65 69 69 69 90 69 69 69 69 69 70 58 80 129 129
G 208 208 208 208 185 185 185 325 185 185 185 185 185 184 184 590 721 721
H 933 933 933 933 1008 1008 1008 - 1008 1008 1008 1008 1152 1287 1407 - - -
CH 212 212 212 212 256 256 256 0 256 256 256 256 256 256 256 0 0 0
I 212 212 212 212 256 256 256 240 256 256 256 256 256 256 256 330 307 307
J 6/4" 6/4" 6/4" 6/4" 6/4" 6/4" 2" 2" 6/4" 6/4" 6/4" 6/4" 2" 2" 2" 2" 2" 2"

* šířka kotle po demontáži bočních kapot je 555 mm 

Typ ATMOSDC18SDC22SDC25SDC30SXDC32SDC40SXDC50SDC70SDC15GSDC20GSDC25GSDC32GSDC40GSDC50GSXDC70GSXDC100DC105SDC150S
Výkon kotle (kW) 20 22 25/27 30 35 40 49,9 70 15 20 25 32 40 49 70 99 105 150
Předepsaný tah komína (Pa/mbar) 18/0,18 23/023 23/0,23 24/0,24 24/0,24 24/0,24 25/0,25 30/0,30 16/0,16 20/0,20 23/0,23 25/0,25 25/0,25 25/0,25 26/0,26 35/0,35 25/0,25 25/0,25
Hmotnost kotle (kg) 269 324 326 332 366 368 433 515 302 343 431 436 485 538 690 820 901 1030
Objem vody (l) 45 58 58 58 80 80 89 93 56 64 80 80 90 120 170 294 265 306
Obsah násypky (dm3(l)) 60 95 95 95 135 135 180 180 66 80 120 120 160 210 280 400 300 400
Délka dřeva (mm) 330 530 530 530 530 530 730 730 250 330 530 530 530 530 730 730 550 750
Spotř. na top. sez. Ø (prost. metry) 20 22 25 30 35 40 50 70 15 19 25 32 40 50 70 99 105 150
Předepsané palivo (preferované) Suché dřevo o výhřevnosti 15 - 18 MJ/kg, průměr 80 - 150 mm a vlhkosti 12 - 20 %
Minimální teplota vratné vody 65 °C
Účinnost (%) 90,1 % 89,9 % 89,9 % 89,9 % 88,9 % 88,9 % 87,7 % 86,3 % 91,2 % 90,6 % 90,3 % 89,3 % 88,8 % 90,6 % 90,3 % 89 % 92 % 90,3 %
Teplota spalin při jmenovitém výkonu (°C) 157 177 177 177 185 185 255 245 134 166 158 171 250 165 161 165 172 180
Třída kotle dle ČSN EN 303-5 5 5 5 5 5 5 4 4 5 5 5 5 5 5 5 5 5 5
Třída energetické účinnosti A+ A+ A+ A+ A+ A+ A+ A+ A+ A+ A+ A+ A+ A+ A+ A+ A+ A+
EKODESIGN OK OK OK OK OK OK OK OK OK OK OK OK OK OK OK OK OK OK
Dotované kotle v ČR     OK OK OK       OK OK OK OK OK OK OK   OK OK

Pozor! Typ kotle na dřevo DC70S, DC100 je vybaven pouze tlačným ventilátorem!