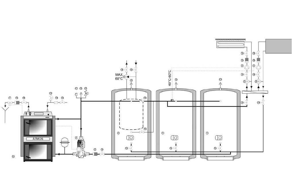
Zapojení kotle s Laddomatem 21/22 a třemi akumulačními nádržemi s ohřevem TUV, dvěma topnými okruhy, uzavřená exp. nádoba - jednoduchá reg. s jedním příložným termostatem

Zapojení kotle s Laddomatem 21/22 a třemi akumulačními nádržemi s ohřevem TUV, dvěma topnými okruhy, uzavřená exp. nádoba - jednoduchá reg. s jedním příložným termostatem
