header img

Další doporučená zapojení kotlů

Doporučená schemata zapojení s využitím Laddomatu 21,22, termoregulačních ventilů, trojcestných ventilů, řízených elektronickou regulací pro požadovanou teplotu vratné vody, elektronické regulace topných systémů a ohřev teplé užitkové vody, pro výkony kotlů do 100 kW.

POZOR - čísla doporučených schémat se neshodují a nemají nic společného s čísly schémat pro zapojení regulace ACD01. Hydraulická schémata pro regulaci ACD 01 najdete pouze v návodu pro samotnou regulaci!


Legenda k variantám zapojení

1 Akumulační nádrž 10 Pojistný ventil přetlakový 19 Zpětná klapka – s pružinou - univerzální
2 Akumulační nádrž s vestavěným příslušenstvím 11 Membránový pojišťovací ventil pro TUV 20 Záložní zdroj el. energie s rozvaděčem
3 Elekltrické topné těleso s termostatem 12 Automatický odvzdušňovací ventil 21 Záložní zdroj el. energie
4 Laddomat 21 13 Tlakoměr 22 Teploměr spalin
5 Termoregulační ventil 14 Kulový kohout 23 Kouřovod 152 mm – s čistícím víkem
6 Termosatický ventil směšovací pro ohřev TUV 15 Filtr 24 Kouřovod 152 mm - smaltovaný
7 Termostatický ventil pro chladící smyčku 16 Příložný termostat na čerpadlo 25 Teploměr
8 Trojcestný ventil 17 Zónový ventil    
9 Čerpadlo 18 Zpětná klapka bez pružiny    

Zapojení kotlů s ručním přikládáním paliva

Další doporučená zapojení kotlů 1. Zapojení kotle s Laddomatem 21/22, jedním topným okruhem s ohřevem TUV v komb. bojleru, uzavřená expanzní nádoba - jednoduchá regul. s třemi příložnými termostaty
Další doporučená zapojení kotlů 2. Zapojení kotle s Laddomatem 21/22, jedním topným okruhem s ohřevem TUV v komb. bojleru, uzavřená exp. nádoba - jednoduchá regul. s dvěma příložnými termostaty
Další doporučená zapojení kotlů 3. Zapojení kotle s termoregulačním ventilem, jedním topným okruhem s ohřevem TUV v komb. bojleru, uzavřená exp. nádoba - jednoduchá regul. s třemi termostaty
Další doporučená zapojení kotlů 4. Zapojení kotle s termoregulačním ventilem, jedním topným okruhem s ohřevem TUV v komb. bojleru, uzavřená exp. nádoba - jednoduchá regulace s dvěma termostaty
Další doporučená zapojení kotlů 5. Zapojení kotle s termoregulačním ventilem, jedním topným okruhem s ohřevem TUV v komb. bojleru, otevřená exp. nádoba - elektronická regulace topného systému
Další doporučená zapojení kotlů 6. Zapojení kotle s Laddomatem 21/22, jedním topným okruhem s ohřevem TUV v komb. bojleru, otevřená exp. nádoba - elektronická regulace topného systému
Další doporučená zapojení kotlů 7. Zapojení kotle s dvěma řízenými trojcestnými ventily, jedním topným okruhem s ohřevem TUV v komb. bojleru, otevřená exp. nádoba - elektronická regul. topného systému a vratné vody do kotle
Další doporučená zapojení kotlů 8. Zapojení kotle s Laddomatem 21/22, jedním topným okruhem s ohřevem TUV v komb. bojleru, otevřená expanzní nádoba - jednoduchá reg. s jedním příložným termostatem
Další doporučená zapojení kotlů 9. Zapojení kotle s Laddomatem 21/22, dvěma topnými okruhy, vyrovnávací nádrž s ohřevem TUV, solární ohřev, uzavřená exp. nádoba - elektronická regul. topného systému
Další doporučená zapojení kotlů 10. Zapojení kotle s term. ventilem, dvěma topnými okruhy, vyrovnávací nádrž s ohřevem TUV, solární ohřev, uzavřená exp. nádoba - elektronická regul. topného systému
Další doporučená zapojení kotlů 11. Zapojení kotle s řízeným trojcestným ventilem, dvěma topnými okruhy, vyrovnávací nádrží s ohřevem TUV, solární ohřev, uzavřená exp. nádoba - elektronická regul. topného systému a vratné vody do kotle
Další doporučená zapojení kotlů 13. Zapojení kotle s Laddomatem 21/22, jedním topným okruhem, s ohřevem TUV v komb. bojleru, vyrovnávací nádrží, uzavřená exp. nádoba - jednoduchá reg. s dvěma termostaty
Další doporučená zapojení kotlů 14. Zapojení kotle s term. ventilem, jedním topným okruhem, s ohřevem TUV v komb. bojleru, vyrovnávací nádrží, uzavřená exp. nádoba - jednoduchá reg. s dvěma termostaty
Další doporučená zapojení kotlů 15. Zapojení kotle s řízeným trojcestným ventilem, jedním topným okruhem, s ohřevem TUV v komb. bojleru, vyrovnávací nádrží, uzavřená exp. nádoba - elektronická regul. topného systému a vratné vody do kotle
Další doporučená zapojení kotlů 16. Zapojení kotle s Laddomatem 21/22 a dvěma akumulačními nádržemi s ohřevem TUV, jedním topným okruhem, uzavřená exp. nádoba - elektronická regul. topného systému
Další doporučená zapojení kotlů 17. Zapojení kotle s řízeným trojcestným ventilem a dvěma akumulačními nádržemi s ohřevem TUV, jedním topným okruhem, uzavřená exp. nádoba - elektronická regul. topného systému a vratné vody do kotle
Další doporučená zapojení kotlů 18. Zapojení kotle s Laddomatem 21/22 a dvěma akumulačními nádržemi, jedním topným okruhem s ohřevem TUV v komb. bojleru, otevřená exp. nádoba - elektronická regul. topného systému
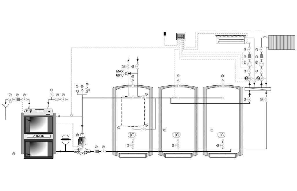
Další doporučená zapojení kotlů 19. Zapojení kotle s Laddomatem 21/22 a třemi akumulačními nádržemi s ohřevem TUV, dvěma topnými okruhy, uzavřená exp. nádoba - jednoduchá reg. s jedním příložným termostatem
Další doporučená zapojení kotlů 20. Zapojení kotle s Laddomatem 21/22 a třemi akumulačními nádržemi s ohřevem TUV, dvěma topnými okruhy, uzavřená exp. nádoba - elektronická regul. topného systému
 21. Zapojení dvou kotlů, Laddomat 21/22, s jedním topným okruhem, s ohřevem TUV v komb. bojleru, uzavřená exp. nádoba - elektronická regul. topného systému a automatické přepínání provozu kotlů pomocí trojcestného ventilu
Další doporučená zapojení kotlů 22. Zapojení dvou kotlů, Laddomat 21/22, s jedním topným okruhem, s ohřevem TUV v komb. bojleru, uzavřená exp. nádoba - jednoduchá regul. topného systému a přepínání provozu kotlů pomocí trojcestného ventilu
Další doporučená zapojení kotlů 23. Zapojení dvou kotlů s Laddomatem 21/22 pro ochranu zpátečky u obou kotlů, jedním topným okruhem, s ohřevem TUV v komb. bojleru, uzavřená exp. nádoba - elektronická regul. topného systému a automatické přepínání provozu kotlů pomocí trojcestného ventilu
Další doporučená zapojení kotlů 24. Zapojení dvou kotlů s Laddomatem 21/22 pro ochranu zpátečky u obou kotlů, jedním topným okruhem, s ohřevem TUV v komb. bojleru, uzavřená exp. nádoba - jednoduchá regul. topného systému a automatické přepínání provozu kotlů pomocí trojcestného ventilu
Další doporučená zapojení kotlů 25. Zapojení dvou kotlů, Laddomat 21/22, jedním topným okruhem, s ohřevem TUV v komb. bojleru, uzavřená exp. nádoba - elektronická regul. topného systému a automatické přepínání provozu kotlů pomocí trojcestného ventilu
Další doporučená zapojení kotlů 26. Zapojení dvou kotlů s Laddomatem 21/22 pro ochranu zpátečky u obou kotlů, jedním topným okruhem, ohřevem TUV v komb. bojleru, uzavřená exp. nádoba - elektronická regul. topného systému a automatické přepínání provozu kotlů pomocí trojcestného ventilu
Další doporučená zapojení kotlů 27. Zapojení dvou kotlů na pevná paliva s termoregulačním ventilem pro ochranu zpátečky, jedním topným okruhem, ohřevem TUV v komb. bojleru, uzavřená exp. nádoba, vyrovnávací nádrž - jednoduchá regul. topného systému a ruční přepínání provozu kotlů
Další doporučená zapojení kotlů 28. Zapojení dvou kotlů s termoregulačním ventilem pro ochranu zpátečky, jedním topným okruhem, ohřevem TUV v komb. bojleru, uzavřená exp. nádoba, vyrovnávací nádrž 1000 l - jednoduchá regul. topného systému, možný provoz obou kotlů současně
Další doporučená zapojení kotlů 29. Zapojení dvou kotlů s Laddomatem 21/22 pro ochranu zpátečky, jedním topným okruhem, ohřevem TUV v komb. bojleru, uzavřená exp. nádoba - jednoduchá regul. topného systému
Další doporučená zapojení kotlů 30. Zapojení dvou kotlů, Laddomat 21/22 pro ochranu zpátečky, jedním topným okruhem, ohřevem TUV v komb. bojleru, uzavřená exp. nádoba - elektronická regul. topného systému, automatické přepínání provozu kotlů pomocí zónových ventilů
Další doporučená zapojení kotlů 31. Zapojení dvou kotlů, Laddomat 21/22 pro ochranu zpátečky, jedním topným okruhem, ohřevem TUV v komb. bojleru, uzavřená exp. nádoba - jednoduchá regul. topného systému, automatické přepínání provozu kotlů pomocí zónových ventilů a termostatů
Další doporučená zapojení kotlů 32. Zapojení dvou kotlů, Laddomat 21/22 pro ochranu zpátečky, jedním topným okruhem, ohřevem TUV v komb. bojleru, uzavřená exp. nádoba - jednoduchá regul. topného systému, automatické přepínání provozu kotlů pomocí zónových ventilů a termostatů
Další doporučená zapojení kotlů 33. Zapojení dvou kotlů s Laddomatem 21/22 pro ochranu zpátečky u obou kotlů, vyrovnávací nádrží, jedním topným okruhem, ohřevem TUV v komb. bojleru, uzavřená exp. nádoba - jednoduchá regul. topného systému, automatické přepínání provozu kotlů pomocí trojcestného mísícího ventilu
Další doporučená zapojení kotlů 34. Zapojení dvou kotlů, Laddomat 21/22 pro ochranu zpátečky, jedním topným okruhem, s ohřevem TUV v komb. bojleru, uzavřená exp. nádoba - jednoduchá regul. topného systému a automatické přepínání provozu kotlů pomocí dvou zónových ventilů
Další doporučená zapojení kotlů 35. Zapojení tří kotlů s Laddomatem 21/22 pro ochranu zpátečky, dvěma topnými okruhy, s ohřevem TUV v komb. bojleru, uzavřená exp. nádoba, vyrovnávací nádrž - jednoduchá regul. topného systému, uzavírání jednotlivých kotlových okruhů pomocí zónových ventilů
Další doporučená zapojení kotlů 36. Zapojení tří kotlů s Laddomatem 21/22 pro ochranu zpátečky, dvěma topnými okruhy, s ohřevem TUV v komb. bojleru, uzavřená exp. nádoba - jednoduchá regul. topného systému, uzavírání jednotlivých kotlových okruhů pomocí zónových ventilů
Další doporučená zapojení kotlů 37. Zapojení tří kotlů s řízeným trojcestným ventilem pro každý kotel s ochranou zpátečky, dvěma topnými okruhy, s ohřevem TUV v komb. bojleru, uzavřená exp. nádoba - jednoduchá regul. topného systému
Další doporučená zapojení kotlů 38. Zapojení tří kotlů s termoregulačním ventilem pro ochranu zpátečky, dvěma topnými okruhy, s ohřevem TUV v komb. bojleru, uzavřená exp. nádoba - elektronická regul. topného systému, uzavírání jednotlivých kotlových okruhů pomocí zónových ventilů
Další doporučená zapojení kotlů 39. Zapojení tří kotlů s Laddomatem 21/22 pro ochranu zpátečky, dvěma topnými okruhy, s ohřevem TUV v komb. bojleru, uzavřená exp. nádoba, vyrovnávací nádrž - elektronická regul. topného systému, uzavírání jednotlivých kotlových okruhů pomocí zónových ventilů
Další doporučená zapojení kotlů 40. Zapojení tří kotlů s řízeným trojcestným ventilem pro každý kotel s ochranou zpátečky, dvěma topnými okruhy, s ohřevem TUV v komb. bojleru, uzavřená exp. nádoba - elektronická regul. topného systému
Další doporučená zapojení kotlů 41. Zapojení tří kotlů s termoregulačním ventilem pro ochranu zpátečky, dvěma topnými okruhy, s ohřevem TUV v komb. bojleru, uzavřená exp. nádoba - jednoduchá regul. topného systému, uzavírání jednotlivých kotlových okruhů pomocí zónových ventilů

Zapojení kotlů s automatickým podáváním paliva

Další doporučená zapojení kotlů 1. Možné, ale né doporučené zapojení kotle s Laddomatem 21/22, bez vyrovnávací nádrže, jedním topným okruhem s ohřevem TUV v komb. bojleru, uzavřená expanzní nádoba - jednoduchá regul. s příložným termostatem
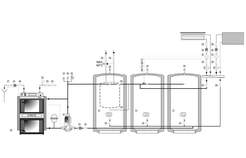
Další doporučená zapojení kotlů 2. Zapojení kotle s Laddomatem 21/22 (termoregulačním ventilem), vyrovnávací nádrží (500 - 1000 l) - řízení podle dvou teplot (čidel TV a TS), jedním topným okruhem s ohřevem TUV v komb. bojleru, uzavřená exp. nádoba
Další doporučená zapojení kotlů 3. Zapojení kotle s termoregulačním ventilem, vyrovnávací nádrží (500 - 1000 l) s výměníkem pro solár - řízením podle tří teplot (čidel TV, TK(TS2) a TS), dvěma topnými okruhy s ohřevem TUV v plovoucím bojleru vyrovnávací nádrže, solární ohřev, uzavřená exp. nádoba
Další doporučená zapojení kotlů 4. Zapojení kotle s termoregulačním ventilem, vyrovnávací nádrží (500 - 1000 l) s výměníkem pro solár - řízením podle tří teplot (čidel TV, TK(TS2) a TS), dvěma topnými okruhy s ohřevem TUV v plovoucím bojleru vyrovnávací nádrže, solární ohřev řízený z hořáku A25, uzavřená exp. nádoba
Další doporučená zapojení kotlů 5A. Zapojení kotle s Laddomatem 21/22 (termoregulačním ventilem), vyrovnávací nádrží (500 - 1000 l) s výměníkem pro solár - řízením podle tří teplot (čidel TV, TK(TS2) a TS), jedním topným okruhem s ohřevem TUV v komb. bojleru, solární ohřev, uzavřená exp. nádoba
Další doporučená zapojení kotlů 5B. Zapojení kotle s Laddomatem 21/22 (termoregulačním ventilem), vyrovnávací nádrží (500 - 1000 l) s výměníkem pro solár - řízením podle tří teplot (čidel TV, TK(TS2) a TS), jedním topným okruhem s ohřevem TUV v komb. bojleru, solární ohřev řízený z hořáku A25, uzavřená exp. nádoba
Další doporučená zapojení kotlů 6. Zapojení kotle s řízeným trojcestným ventilem, jedním topným okruhem, vyrovnávací nádrží (500 - 1000 l), ohřevem TUV v komb. bojleru, uzavřená exp. nádoba - elektronická regulace ACD01 topného systému a vratné vody do kotle, regulace podle dvou teplot (VE3 a KSPF)
Další doporučená zapojení kotlů 7. Zapojení kotle s termoregulačním ventilem, dvěma topnými okruhy, vyrovnávací nádrží (500 - 1000 l) s výměníkem pro solár, ohřevem TUV v plovoucím bojleru vyrovnávací nádrže, solární ohřev, uzavřená exp. nádoba - elektronická regulace ACD01 topného systému a soláru, regulace podle dvou teplot (VE3 a KSPF)
Další doporučená zapojení kotlů 8. Zapojení kombinovaného kotle (DCxxSP(L)) s Laddomatem 21/22 (termoregulačním ventilem), jedním topným okruhem, vyrovnávací nádrží (500 - 1000 l) - řízením podle dvou teplot (čidel TV a TS), ohřevem TUV v komb. bojleru, uzavřená exp. nádoba
Další doporučená zapojení kotlů 9. Zapojení kombinovaného kotle (DCxxSP(L)) s Laddomatem 21/22 (termoregulačním ventilem), jedním topným okruhem, vyrovnávací nádrží (500 - 1000 l) - řízením podle dvou teplot (čidel TV a TS), ohřevem TUV v komb. bojleru, uzavřená exp. nádoba, s automatickým startem peletového hořáku po dohoření dřeva - řízeného z hořáku A25
Další doporučená zapojení kotlů 10. Zapojení kombinovaného kotle (DCxxSP(L)) s Laddomatem 21/22, jedním topným okruhem, vyrovnávací nádrží (500 - 1000 l) - řízením podle dvou teplot (čidel VE3 a KSPF), ohřevem TUV v komb. bojleru, uzavřená exp. nádoba, s automatickým startem hořáku po dohoření dřeva - řízeného z elektronické regulace ACD01
Další doporučená zapojení kotlů 11. Zapojení kombinovaného kotle (DCxxSP(L)) s termoregulačním ventilem, dvěma topnými okruhy, vyrovnávací nádrží (500 - 1000 l) - řízením podle dvou teplot (čidel VE3 a KSPF) s výměníkem pro solár, ohřevem TUV v plovoucím bojleru vyrovnávací nádrže, solární ohřev, uzavřená exp. nádoba, s automatickým startem hořáku po dohoření dřeva - elektronická regulace ACD01 topného systému a soláru
Další doporučená zapojení kotlů 12. Zapojení kotlů DCxxS, CxxS, ACxxS, KCxxS, DCxxRS se zabudovaným hořákem ve vrchních dvířkách, Laddomatem 21/22, jedním topným okruhem, vyrovnávací nádrží (500 - 1000 l) - řízením podle dvou teplot (čidel TV a TS), ohřevem TUV v komb. bojleru, uzavřená exp. nádoba
Další doporučená zapojení kotlů 13. Zapojení kotlů DCxxS, CxxS, ACxxS, KCxxS, DCxxRS se zabudovaným hořákem ve vrchních dvířkách, Laddomatem 21/22, dvěma topnými okruhy, vyrovnávací nádrží (500 - 1000 l) - řízením podle dvou teplot (čidel TV a TS), ohřevem TUV v komb. bojleru, uzavřená exp. nádoba - řízení z elektronické regulace ACD01
Další doporučená zapojení kotlů 14. Zapojení kotle s Laddomatem 21/22 (termoregulačním ventilem), jedním topným okruhem, vyrovnávací nádrží (500 - 1000 l) - řízením podle dvou teplot (čidel TS a TK (TS2)), s ohřevem TUV v solárním. bojleru se dvěma výměníky, solární ohřev řízený z hořáku A25 a združeným termostatem T (STB), uzavřená exp. nádoba,

Důležité informace - shrnutí

1. Modul AD02 slouží standatně k ovládní odtahového ventilátoru kotle

2. Modul AD03 slouží standatně k ovládní odtahového ventilátoru kotle a zároveň čerpadla v kotlovém okruhu nebo solárního čerpadla. Platí pouze pro model hořáku 2012 a mladší (AC07X).

3. Sada SC2012 je sadou čtyř samostatných čidel, která se skládá ze tří čidel vody KTF20 s 6  m kabelem, jedním čidlem spalin (soláru) s 5  m kabelem a jímkou pro solár. Platí pouze pro model hořáku 2012 a mladší (AC07X).

4. Sada AS25 slouží k ovládání hořáku A25 (A45) a kotle vybaveného odtahovým ventilátorem podle dvou teplot (čidel) na vyrovnávací nádrži o objemu 500 až 1000 l. Skládá se ze dvou čidel KTF20 s 5  m kabelem, modulu AD02 pro ovládání odtahového ventilátoru a speciální propojky.

5. Sada AS2012 slouží k ovládání hořáku A25 (A45), kotle vybaveného odtahovým ventilátorem, čerpadla v kotlovém okruhu nebo čerpadla solárního ohřevu podle tří teplot (čidel) na vyrovnávací nádrži se solárním výměníkem a ve spolupráci s čidlem na solárním panelu. Sada čtyř čidel se zapojeným konektorem se skládá ze tří čidel vody KTF20 s 6  m kabelem, jedním čidlem spalin (soláru) do 400 °C s 5  m kabelem, jímkou pro solár, čtyřmi dutinkami s cínem ke snadnému spojení vodičů, modulem AD03 pro ovládání odtahového ventilátoru kotle a čerpadla v kotlovém okruhu (soláru) z hořáku A25 a jednou propojkou pro kotle DCxxSP. Tato sada je určena pro kotle DCxxSP s funkcí automatického startu hořáku na pelety po dohoření dřeva, nebo pro kotle DxxP s funkcí řízení hořáku podle tří teplot na vyrovnávací nádrži s výměníkem pro solár. Platí pouze pro model hořáku 2012 a mladší (AC07X).

6. Chceme-li, aby hořák A25 (A45) pracoval podle dvou teplo na vyrovnávací nádrži musím do nádrže umístit čidla Tv (vrchní) a Ts (spodní).

7. Chceme-li, aby hořák A25 (A45) pracoval podle tří teplot na vyronávací nádrži s výměníkem pro spolár, musíme do nádrže umístit čidla Tv (vrchní), Tk (Ts2 - prostřední) a Ts (spodní). Dále musíme umístit na solární panel čidlo Tsv. Ohřívání vyrovnávací nádrže energií ze solárního panelu je řízeno na základě porovnávání teplot Tsv a Ts. Nabíjení vyrovnávací nádrže hořákem na pelety je řízeno podle čidla Tv a Ts nebo Tk (Ts2 - speciální funkce hořáku). Platí pouze pro model hořáku 2012 a mladší (AC07X).

8. V případě, že chceme ovládat čerpadlo v kotlovém okruhu z hořáku A25 (A45), musí být do kotle umístěno čidlo teploty kotle Tk (nelze ale využít funkce řízení podle tří teplot na vyrovnávací nádrži). Platí pouze pro model hořáku 2012 a mladší (AC07X).